Biasca
L’idea iniziale alla base del progetto è stata quella di collegare fisicamente l’ex arsenale al centro storico di Biasca attraverso la creazione di un parco.
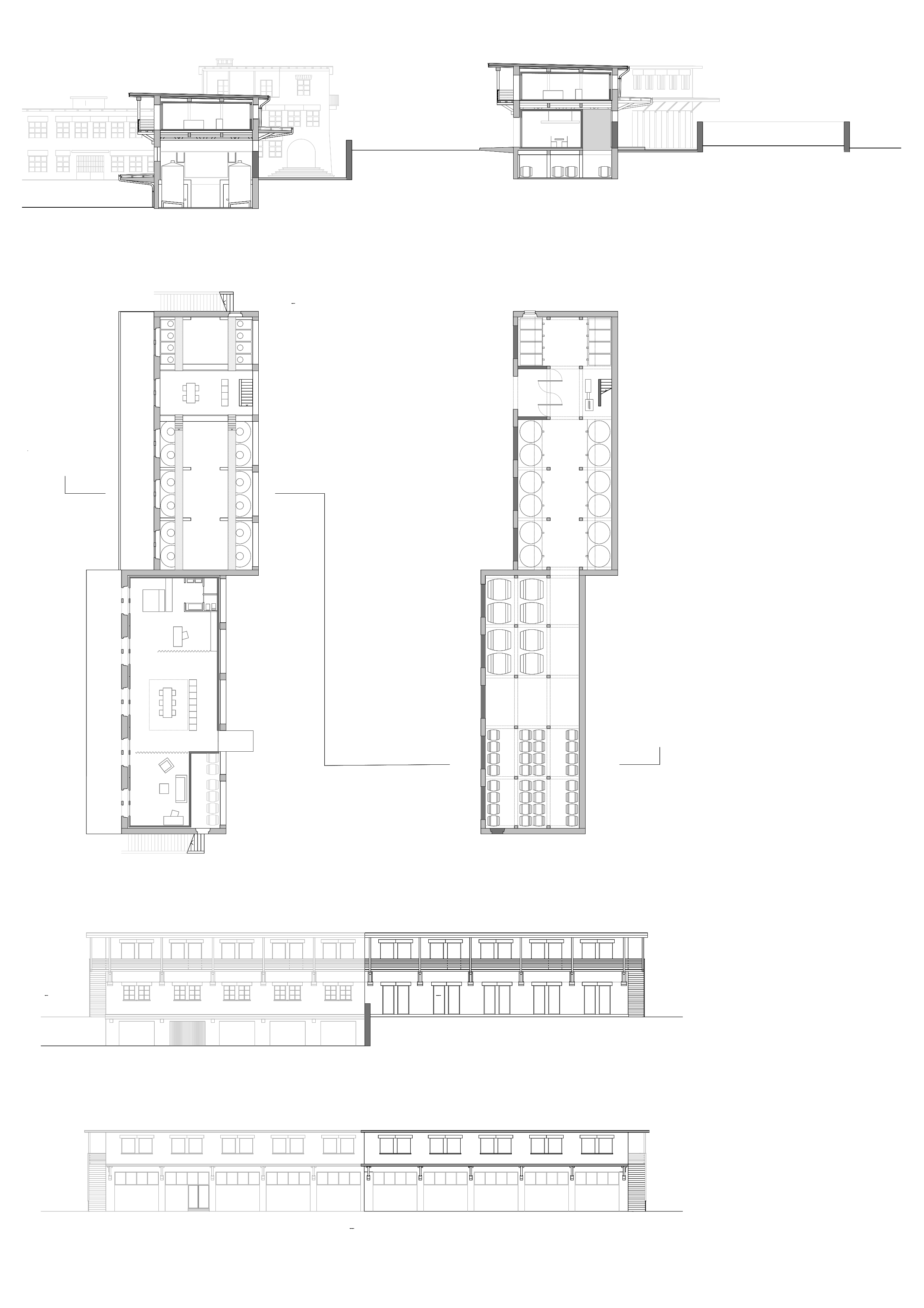
Analizzando il territorio circostante si notava la presenza di numerose vigne posizionate vicino alle abitazioni private; per questo la scelta di destinare il piano terreno e l’interrato degli edifici esistenti ad attività legate alla produzione, al commercio e la degustazione del vino, così da instaurare una nuova attrattiva legata al contesto.
Per differenziare gli spazi tra le coppie di edifici esistenti si è ridisegnato il limite della montagna, facendolo penetrare all’interno della piazza, creando un nuovo livello relazionato al piano terra dell’edificio a monte.
Gli edifici dell’arsenale sono così contenuti tra il limite della montagna ad Est e quello delle vigne ad Ovest.
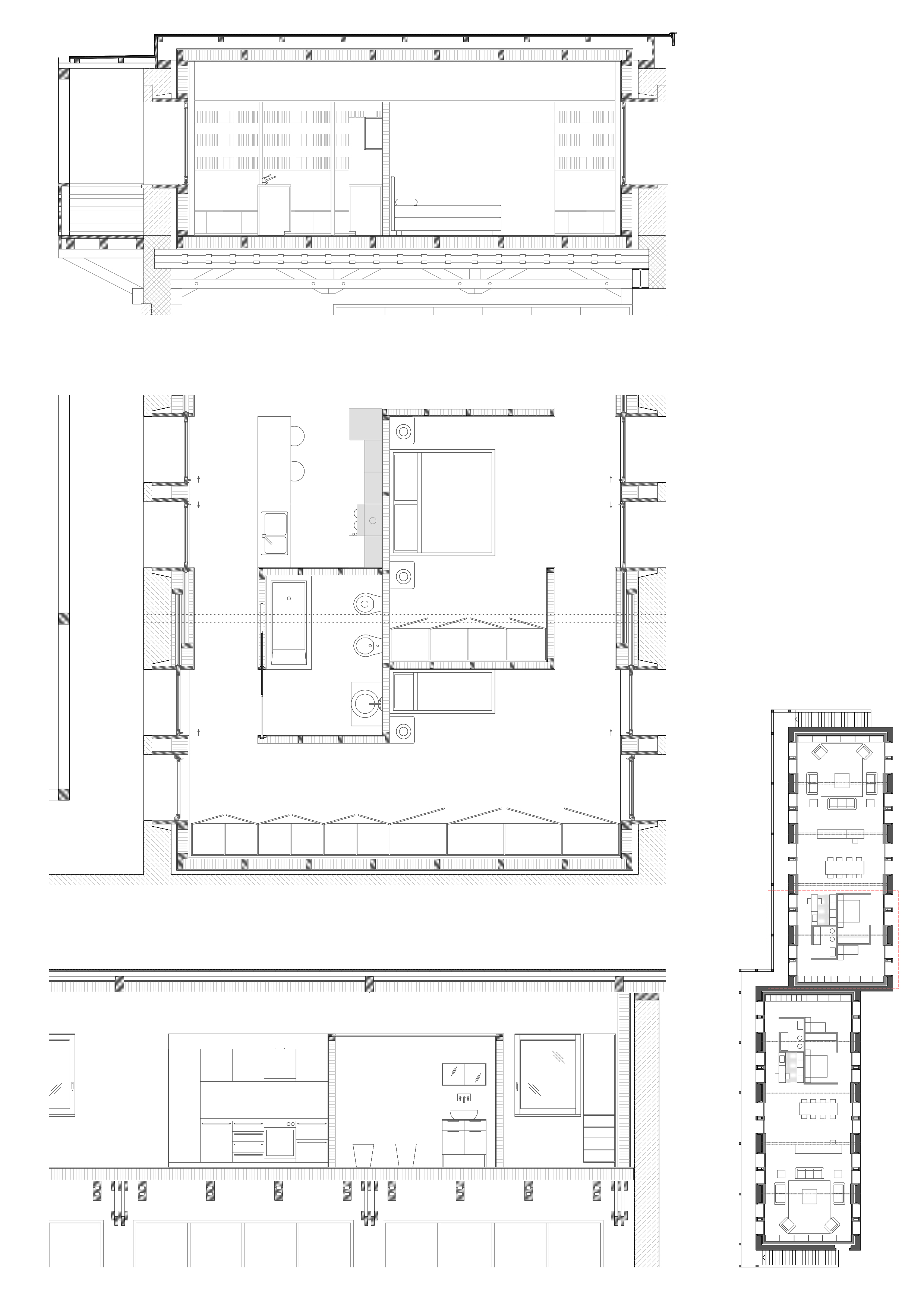
In seguito la decisione di adibire il piano superiore degli edifici ad abitazione, attraverso l’inserimento di una scatola in legno all’interno del volume che crea uno stacco netto dall’esistente. La scatola che racchiude l’appartamento segue il profilo dell’esistente mantenendosi distaccata e solo in corrispondenza delle aperture trova un ancoraggio ai muri originali valorizzando il ritmo della struttura e sfruttandola come regola per la successione degli spazi interni che presentano uno sviluppo in verticale.
